Skip to content

Disability Renovations & Modifications

The Process

Step 2

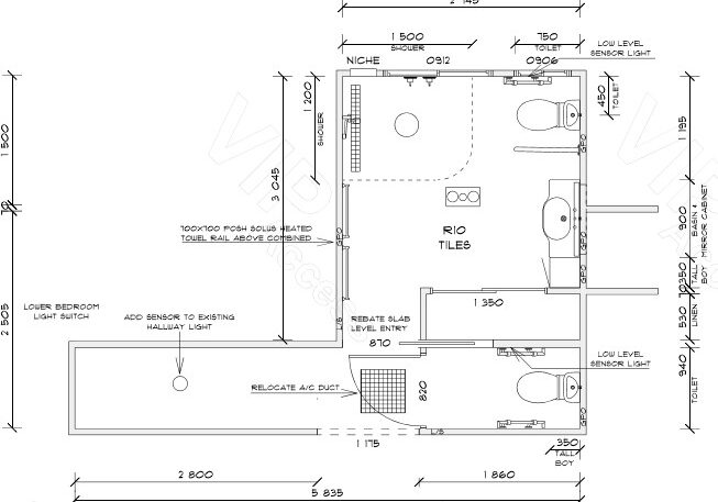
VIP Access Bathroom Plans

WORKING DRAWINGS AND COSTING

Step 3

Bathroom-1

CONSTRUCTION STAGE

We Live What We Do - A Unique Approach to Disability Renovations

Disability Renovations & Modifications

One of the core services of VIP Access is modifying homes and workplaces to be accessible for the intended users. As a registered builder and a wheelchair user, owner Scott has a unique perspective on how to create the best solutions to assist people with disabilities in their day-to-day life. VIP Access provides access solutions according to the Australian standards and regulations, and in some cases beyond by focusing on usability and safety for people with physical disabilities. At VIP Access, we specialise in disability renovations for homes and offices, having transformed numerous bathrooms and kitchens to be wheelchair friendly. We are also highly experienced in creating top access solutions with regards to access ramps, thresholds, lifts and more.

Read more about how we can modify your home or business to suit users of all physical abilities:

Minor Home Modifications we can provide:

  • Ramps – Custom made aluminium, rubber, timber and concrete
  • Non – slip treatments
  • Grab Rails – Custom made for inside and outside
  • Bidets
  • Stair Lifts
  • Therm-Oz - Thermostatic Showers

Check out our gallery for some of the alterations we have designed and implemented for access rampskitchens and bathrooms. In addition we have great experience in supervising and consulting on various access jobs for commercial and public sectors.

OUR WORK

Contact VIP Access today for a friendly discussion on how we can be of assistance.